→ PRODUCTS
ISO 9001:2008 Certified
![]()
|
Home / Products / Flanges / ASME B16.5 Threaded Flanges We are a company focused on engineering and business activities in the area of environmental technologies. Our Product Supply Division offers a broad portfolio of Steel Flanges and ASME B16.5 Threaded Flanges. ASME B16.5 Threaded Flanges
DimensionsDiameter : 1/2" à 24" Pressure class : 150# - 300# - 600# - 1500# Variations
Standards
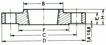
150Lbs - 300Lbs - 600LbsThe tables below show the most common sizes but are not exhaustive. 150 Lbs
1,6mm raised face not included in the E & H dimensions The dimensions are in millimeters
|
|||||||||||||||||||||||||||||||||||||||||||||||||||||||||||||||||||||||||||||||||||||||||||||||||||||||||||||||||||||||||||||||||||||||||||||||||||||||||||||||||||||||||||||||||||||||||||||||||||||||||||||||||||||||||||||||||||||||||||||||||||||||||||||||||||||||||||||||||||||||||||||||||||||||||||||||||||||||||||||||||||||||||||||||||||||||||||||||||||||||||||||||||||||||||||||||||||||||||||||||||||||||||||||||||||||||||||||||||||||||||||||||||||||||||||||||||||||||||||||||||||||||||||||||||||||||||||||||||||||||||||||||||||||||||||||||||||||||||||||||||||||||||||||||||||||||||||||||||||||||||||||||||||||||||||||||||||||||||||||||
| Drilling | |||||||||
|---|---|---|---|---|---|---|---|---|---|
| Nominal Bore | Dia. (D) |
Thick. (E) |
Dia. (F) |
Dia. (B) |
Dia. (A) |
Height1 (H) |
Nbr | Holes | Dia. (C) |
| 1/2" | 95 | 12.7 | 35.05 | 38 | 23.6 | 21 | 4 | 15.87 | 66.7 |
| 3/4" | 115 | 14.3 | 42.92 | 48 | 29.0 | 24 | 4 | 19.05 | 82.6 |
| 1" | 125 | 15.9 | 50.80 | 54 | 35.8 | 25 | 4 | 19.05 | 88.9 |
| 1 1/4" | 135 | 17.5 | 63.50 | 64 | 44.4 | 25 | 4 | 19.05 | 98.4 |
| 1 1/2" | 155 | 19.1 | 73.15 | 70 | 50.3 | 29 | 8 | 22.22 | 114.3 |
| 2" | 165 | 20.7 | 91.94 | 84 | 63.5 | 32 | 8 | 19.05 | 127.0 |
| 2 1/2" | 190 | 23.9 | 104.65 | 100 | 76.2 | 37 | 8 | 22.22 | 149.2 |
| 3" | 210 | 27.0 | 127.00 | 117 | 92.2 | 41 | 8 | 22.22 | 168.3 |
| 3 1/2" | 230 | 28.6 | 139.70 | 133 | 104.9 | 43 | 8 | 22.22 | 184.2 |
| 4" | 255 | 30.2 | 157.22 | 146 | 117.6 | 46 | 8 | 22.22 | 200.0 |
| 5" | 280 | 33.4 | 185.67 | 178 | 144.4 | 49 | 8 | 22.22 | 235.0 |
| 6" | 320 | 35.0 | 215.90 | 206 | 171.4 | 51 | 12 | 22.22 | 269.9 |
| 8" | 380 | 39.7 | 269.75 | 260 | 222.2 | 60 | 12 | 25.40 | 330.2 |
| 10" | 445 | 46.1 | 323.85 | 321 | 276.2 | 65 | 16 | 28.57 | 387.4 |
| 12" | 520 | 49.3 | 381.00 | 375 | 328.6 | 71 | 16 | 31.75 | 450.8 |
| 14" | 585 | 52.4 | 412.75 | 425 | 360.4 | 75 | 20 | 31.75 | 514.4 |
| 16" | 650 | 55.6 | 469.90 | 483 | 411.2 | 81 | 20 | 34.92 | 571.5 |
| 18" | 710 | 58.8 | 533.40 | 533 | 462.0 | 87 | 24 | 34.92 | 628.6 |
| 20" | 775 | 62.0 | 584.20 | 587 | 512.8 | 94 | 24 | 34.92 | 685.8 |
| 24" | 915 | 68.3 | 692.15 | 702 | 614.4 | 105 | 24 | 41.27 | 812.8 |
1,6mm raised face not included in the E & H dimensions
The dimensions are in millimeters
Source : ASME B16.5 - 2007
600 Lbs

| Drilling | |||||||||
|---|---|---|---|---|---|---|---|---|---|
| Nominal Bore | Dia. (D) |
Thick. (E) |
Dia. (F) |
Dia. (B) |
Dia. (A) |
Height1 (H) |
Nbr | Holes | Dia. (C) |
| 1/2" | 95 | 14.3 | 35.05 | 38 | 23.6 | 22 | 4 | 15.87 | 66.7 |
| 3/4" | 115 | 15.9 | 42.92 | 48 | 29.0 | 25 | 4 | 19.05 | 82.6 |
| 1" | 125 | 17.5 | 50.80 | 54 | 35.8 | 27 | 4 | 19.05 | 88.9 |
| 1 1/4" | 135 | 20.7 | 63.50 | 64 | 44.4 | 29 | 4 | 19.05 | 98.4 |
| 1 1/2" | 155 | 22.3 | 73.15 | 70 | 50.6 | 32 | 4 | 22.22 | 114.3 |
| 2" | 165 | 25.4 | 91.94 | 84 | 63.5 | 37 | 8 | 19.05 | 127.0 |
| 2 1/2" | 190 | 28.6 | 104.65 | 100 | 76.2 | 41 | 8 | 22.22 | 149.2 |
| 3" | 210 | 31.8 | 127.00 | 117 | 92.2 | 46 | 8 | 22.22 | 168.3 |
| 3 1/2" | 230 | 35.0 | 139.70 | 133 | 104.9 | 49 | 8 | 25.40 | 184.2 |
| 4" | 275 | 38.1 | 157.22 | 152 | 117.6 | 54 | 8 | 25.40 | 215.9 |
| 5" | 330 | 44.5 | 185.67 | 189 | 144.4 | 60 | 8 | 28.57 | 266.7 |
| 6" | 355 | 47.7 | 215.90 | 222 | 171.4 | 67 | 12 | 31.75 | 292.1 |
| 8" | 420 | 55.6 | 269.75 | 273 | 222.2 | 76 | 12 | 31.75 | 349.2 |
| 10" | 510 | 63.5 | 323.85 | 343 | 276.2 | 86 | 16 | 34.92 | 431.8 |
| 12" | 560 | 66.7 | 381.00 | 400 | 328.6 | 92 | 20 | 34.92 | 489.0 |
| 14" | 605 | 69.9 | 412.75 | 432 | 360.4 | 94 | 20 | 38.10 | 527.0 |
| 16" | 685 | 76.2 | 469.90 | 495 | 411.2 | 106 | 20 | 41.27 | 603.2 |
| 18" | 745 | 82.6 | 533.40 | 546 | 462.0 | 117 | 20 | 44.45 | 654.0 |
| 20" | 815 | 88.9 | 584.20 | 610 | 512.8 | 127 | 24 | 44.45 | 723.9 |
| 24" | 940 | 101.6 | 692.15 | 718 | 614.4 | 140 | 24 | 47.62 | 838.2 |
6,4mm raised face not included in the E & H dimensions
The dimensions are in millimeters
Source : ASME B16.5 - 2007
Main Export Market
- Eastern Europe
- North America
- Mid East/Africa
- Central/South America
- Asia
- Western Europe
- Australasia
- UAE
U.A.E,
Oman,
Saudi Arabia,
Qatar,
Bahrain,
Egypt,
Turkey
Singapore,
Thailand,
Malaysia
Indonesia
Poland
Italy
Portugal
Spain
Brazil
Chile
Venezuela
Costa Rica
USA
Canada
Angola
Sri Lanka
Russia
|
||||||||||||||||||||||||



